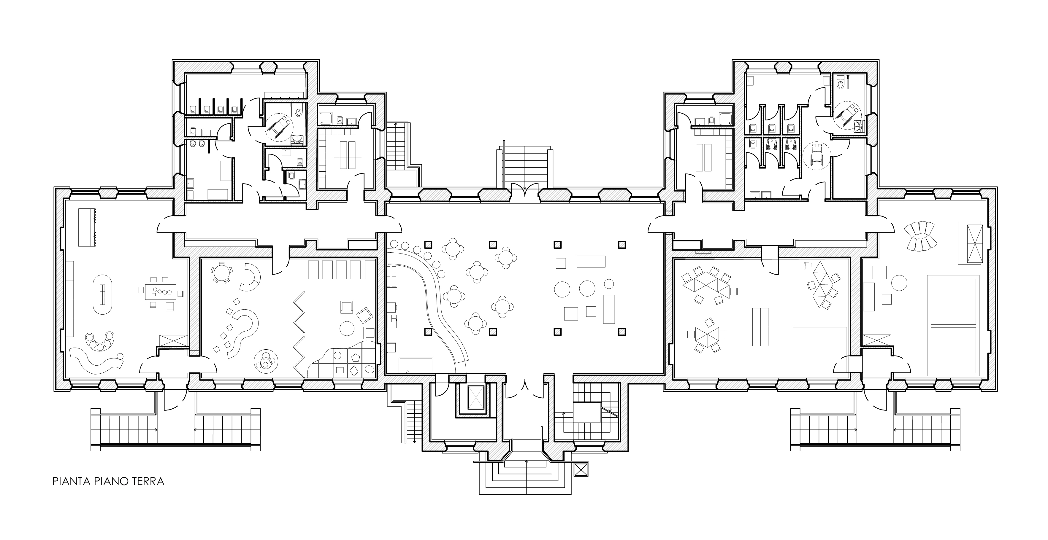
Casa dei Bambini Montessori: centro polifunzionale per la famiglia

L'ex asilo Montessori di via Lambro, grazie al finanziamento ottenuto con il PNRR, prende nuova vita e diventa un centro di aggregazione dedicato a famiglie e bambini. Guarda le foto del cantiere!

Un'immagine generica segnaposto con angoli arrotondati in una figura.

Descrizione

UN NUOVO CENTRO POLIFUNZIONALE PER LA FAMIGLIA

L’ex asilo Montessori di via Lambro, chiuso dal 1984, grazie al finanziamento ottenuto con il PNRR, prende nuova vita e diventa un centro di aggregazione sociale per il quartiere Villaggio Falck dedicato a famiglie e bambini!

Nel 2010 il Ministero per i beni culturali e ambientali ha vincolato l’edificio e quindi tutti gli interventi sono improntati al mantenimento delle caratteristiche architettoniche originarie.

Guarda il progetto nel dettaglio.