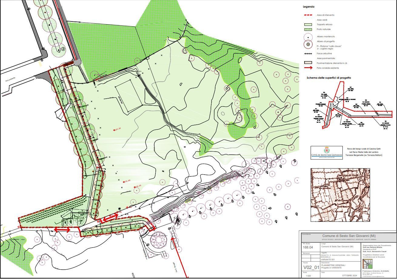
La Terrazza Bergamella del Parco della Media Valle del Lambro è un’ampia area verde a sud di Sesto, al confine tra il quartiere di Cascina Gatti e il Comune di Milano.
Il progetto di riqualificazione di quest’area ha trasformato il tratto finale di via Carlo Marx in una grande porta di accesso al parco. La “Terrazza” è diventata un’area pedonale pensata come una via di collegamento tra le zone residenziali di Sesto e Milano e le grandi aree verdi del Parco di Cascina Gatti e del Parco Adriano, all’interno del Parco di interesse sovracomunale Media Valle Lambro.
Il belvedere
Sfruttando il notevole dislivello tra la strada e l’area di campagna vicina, la riqualificazione trasformerà la superficie asfaltata esistente in una vera e propria area sopraelevata di affaccio e ingresso al Parco, con una nuova pavimentazione drenante, un parterre alberato e spazi e attrezzature dedicate al fitness.
Le nuove installazioni
Nella Terrazza ci saranno:
- attrezzature per il fitness
- nuovo impianto di illuminazione
- telecamere di video sorveglianza
- nuovi percorsi ciclo-pedonali che collegano Sesto con Milano in direzione sud-nord ed est-ovest.
I tempi
I lavori sono durati circa 180 giorni, terminati a settembre 2025.
Le tavole
Le foto
Da sapere
La Terrazza e lo Skatepark hanno costituito la parte di co-finanziamento e progettazione del Comune per partecipare al "Bando periferie" e ottenere i circa 5 milioni di euro di finanziamento per interrare l'elettrodotto.
A cura di
Scopri com’è nato il parco, quali sono le sue attrezzature, i luoghi da visitare e gli eventi in programma.
Ultimo aggiornamento:
13/01/2026 17:11
