Al via il progetto di riqualificazione di una grande area del Parco delle Torri, che verrà rinnovato sia dal punto di vista ambientale sia nell’organizzazione degli spazi verdi: il parco avrà nuovi percorsi e arredi, nuovi spazi di aggregazione e aree giochi, una nuova illuminazione e tanto nuovo verde!
L’area
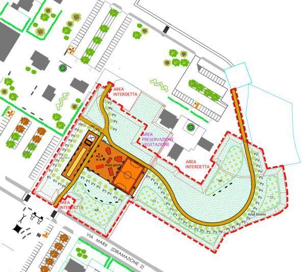
L’area del Parco che riqualifichiamo è quella compresa tra i lotti C e D.
Aler riqualificherà i lotti F e H.
Gli interventi
- dimensioni: 60 m x 30 m in pianta con una profondità di circa 3 m dalla superficie
- il bacino scavato sarà impermeabilizzato
- il mantenimento minimo vitale di acqua garantisce la rinaturalizzazione e la fruibilità dell’area
- nuove piantumazioni e nuovo impianto di irrigazione
- nuovi percorsi, arredi e strutture: all’interno del Parco creeremo nuovi percorsi, senza barriere architettoniche, e nuovi spazi, come ad esempio un campo di calcetto con pavimentazione sportiva e resina e recinzione perimetrale. Valorizzeremo le aree tra le torri con una nuova pavimentazione e nuove fioriere. Installeremo inoltre nuovi arredi urbani (panchine, cestini, fontane, porta bici, ecc…).
- illuminazione pubblica: nuovo impianto di illuminazione a led alti 4 metri, per un totale di 32 punti luce.
- videosorveglianza e smartcity: nuovo impianto di video-sorveglianza con installazione di 3 telecamere
- nuovi spazi di aggregazione e aree giochi
- aree giochi: nuove aree giochi inclusive con pavimentazione antitrauma in gomma colorata. Alcune saranno semplici, altre più complesse per offrire diverse possibilità e rispondere alle esigenze dei bambini di tutte le fasce di età.
- campo bocce: nuovo campo bocce in erba sintetica di 27,5 x 3,5 metri.
I tempi
Il 20 gennaio 2026 riprendono i lavori di riqualificazione sull'area, dopo una sospensione dovuta a problemi con la prima impresa aggiudicataria. Il cronoprogramma del progetto prevede la realizzazione della riqualificazione in 39 settimane.
I costi
I lavori sui lotti C e D hanno un costo di 2.397.052,97 euro.
Il Contratto di Quartiere II Parco delle Torri
Nel 2005 è stato firmato dal Ministero delle Infrastrutture e dei Trasporti e dalla Regione Lombardia l’Accordo Quadro per il “Contratto di Quartiere II – Parco delle Torri”. In seguito a questo accordo, il Comune di Sesto e Aler hanno firmato la convenzione per attuare il Contratto, che prevede di:
- definire un nuovo piano della mobilità
- realizzazione un nuovo edificio per attrezzature di interesse pubblico
- riqualificare l’area con la progettazione partecipata da parte degli abitanti
- realizzare un nuovo parco
A cura di
Coordina e gestisce le funzioni di tutela ambientale in materia di bonifiche dei siti contaminati.
Ultimo aggiornamento:
20/01/2026 10:30
